地址:广东省佛山市顺德区陈村镇白陈公路文海路段西侧文海工业区9号之六
销售热线:0757-23302558 400-617-3066
公司传真:0757-23305665
手机:13549962688
公司邮箱:wd@wdfdj.com

发电机组参数 (Parameters of Generator Set) | 产品图片(Generator set picture) | ||||||||
发电机组技术生产商:广东隆宏机电设备有限公司 (Guangdong Longhong electromechanical equipment Co., LTD) | 开架型柴油发电机组 (Open frame dieselgeneratorset) | ||||||||
机组型号 (Unit type) | LHGF-1800 |
| |||||||
常用功率 (normal power) | 1800KW | ||||||||
备用功率 (standby switch) | 1980KW | ||||||||
常用容量 (Active capacity) | 2250KVA | ||||||||
备用容量 (reserve capacity) | 2475KVA | ||||||||
额定电流 (rated current) | 3240A | ||||||||
额定输出电压 (Rated output voltage) | 400/230V | ||||||||
额定频率 (rated frequency) | 50HZ | ||||||||
额定转速 (rated speed) | 1500rpm | ||||||||
燃油消耗率 (fuel consumption rate) | ≤206g/kw.h | ||||||||
启动控制方式 (Start control mode) | 电动CD24V | ||||||||
额定功率因 (rated power factor) | 0.8lag=COSΦ | 低噪音型柴油发电机组 (Low noisedieselgeneratorset) | |||||||
| 噪声 (noise) | 75~95dB | ![]() | |||||||
电压稳定时间 (voltage settling time) | S ≤1 | ||||||||
电压波动率 (Voltage fluctuation) | % ≤±0.5 | ||||||||
频率波动率 (Frequency fluctuation) | % ≤±0.5 | ||||||||
瞬态频率 (Transient frequency) | % +10~-7 | ||||||||
频率稳定时间 (Frequency stabilizationtime) | S ≤3 | ||||||||
| 稳态电压调整率 (Steady-state voltage adjustment rate) | % ≤±1 | ||||||||
| 瞬态电压调整率 (Transient voltage adjustment rate) | % +20~-15 | ||||||||
柴油机参数 (Diesel engine parameters) | 柴油机图片(Diesel engine image) | ||||||||
| 柴油机生产商 (Diesel engine producer) | 英国珀金斯发动机有限公司 Perkins Engine Ltd |
| |||||||
发动机品牌 (Engine brand) | 珀金斯动力 Perkins Power | ||||||||
发动机型号 (engine type); | 4016-61TRG3 | ||||||||
发动机功率 (engine power) | 1975/2183KW | ||||||||
缸径*行程 (cylinder bore / stroke) | 160×190(mm) | ||||||||
燃油消耗率 fuel consumption rate | ≤206g/kw.h | ||||||||
启动方式 (starting mode) | DC24V | ||||||||
供油方式 (Oil supply mode) | 直喷(Vertical) | ||||||||
| 排量 (displacement) | 61.1L | ||||||||
| 转速 (rotate speed) | 1500rpm | ||||||||
调速方式 (speed adjustment mode) | 电子调速 (Electronic speed regulation) | ||||||||
进气方式 (Intake mode) | 涡轮增压 Turbocharged | ||||||||
形式 (form) | 直列、四冲程、水冷、直接喷射式 In-line, four-stroke, water-cooled, direct injection | ||||||||
| 气缸数/缸体结构 (Cylinder block structure) | 16缸V列、4冲程 16 cylinder V row, 4strokes | ||||||||
| 发电机参数(Generator parameter) | 发电机图片(Generator picture) | ||||||||
| 发电机品牌 (Generator brand) | 互泰(Mutual exchange) 利莱森玛(Lilishumar) 斯坦福(stanford) 马拉松(marathon) |
|
| ||||||
额定功率 (rated power) | 1800KW | ||||||||
额定容量 (rated capacity) | 2250KVA | ||||||||
额定电流 (rated current) | 3240A | ||||||||
额定电压 (nominal voltage) | 400V/230V | ||||||||
额定频率 (rated frequency) | 50HZ | ||||||||
额定转速 (rated speed) | 1500rpm |
|
| ||||||
输出因素 (Output factor) | COSΦ=0.8(lag) | ||||||||
绝缘等级 (insulation grade) | H | ||||||||
防护等级 (level of protection) | IP21 | ||||||||
接线方式 (mode of connection) | 三相四线、Y型接法 (three-phase four-wire) | ||||||||
调节方式 accommodation mode | AVR (automatic voltage regulator) | ||||||||
| 控制器(Controller) | 控制器图片(Controller picture) | ||||||||
型号 (model) | 隆宏(Longhong)、 众智(Zhongzhi)、 科迈(Comay)、 深海(deep sea) |
|
| ||||||
| 保护功能: | |||||||||
低油压预警 (Low oil pressure warning) | |||||||||
高水温预警 (High water temperature warning) | |||||||||
超负载预警 (Overload warning) |
|
| |||||||
高低压预警 (High and low pressure warning) | |||||||||
警告/停机报警 (Warning stop alarm) | |||||||||
紧急停止 (fetch up) | |||||||||
多国家语言 (multilingual) | |||||||||
ATS双电源全自动开关 (ATS dual power automatic switch) | ATS双电源图片(ATS Dual power supply picture) | ||||||||
| 四级机械、电器连锁切换开关; Four-lever mechanical, electric interlocking transfer switch; |
| ![]() | |||||||
| 市电、发电、输出状态指示灯; Output state indicator for utility power generated power; | |||||||||
| 自动、手动选择开关; Automatic, manual selection switch; | |||||||||
| 屏体坚固、操作方便; Firm panel, simple operation; | |||||||||
| 自动切换时间可调(不超过7秒)。 Adjustable automatic transfer time(Maximum7 seconds). | |||||||||
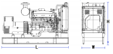
机组尺寸及架构 (Unit size and structure) | 机组架构图 (Unit structure drawing) | ||||||||
开架型发电机组尺寸 (Dimensions of open frame generator set) | 低噪音型发电机组尺寸(Low noise generator size) | ||||||||
| 长*宽*高(L*W*H) 5800*2800*3400(mm) | 长*宽*高(L*W*H) 7500*2200*2550(mm) | ||||||||
| 重量(Weight) 14550 (Kg) | 重量(Weight) 18350(Kg) | ||||||||
|
| ||||||||
| 以上参数仅供参考,产品图片以实物为准。 | |||||||||
帕金斯柴油机 帕金斯动力 帕金斯低噪音柴油发电机组 开架型柴油发电机组
产品订购:帕金斯动力低噪音柴油发电机组1800KW发电机